您好,欢迎进入苏州贝博起重科技有限公司!
咨询热线:18662173777
苏州贝博起重科技有限公司

Suzhou Outuo Lifting Technology Co., Ltd

微信咨询
苏州贝博起重科技有限公司
苏州贝博起重科技有限公司
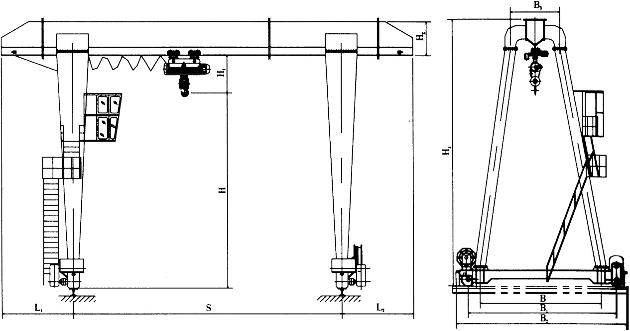
MH型电动葫芦门式起重机(包厢型)

欢迎来厂参观,免费携带物料试机,专车接送!

产品类别:门式起重机

产品说明:  MH型3~20吨电动葫芦门式起重机(箱型式)  MHType3~20tElectricHoistGantryCran

联系我们   全国服务热线:18662173777
产品介绍

PRODUCT INTRODUCTION


7

  MH型3~20吨电动葫芦门式起重机(箱型式)

  MHType3~20tElectricHoistGantryCrane(Boxtype)

  简介ABriefIntroduction

  MH型电动葫芦门式起重机与CDMD等型号的电动葫芦配套使用,是一种有轨运行的中小型起重机,其适用起重量3~20吨,适用跨度12~30米,工作环境-20℃~+40℃内。

  本产品为一般用途起重机,多用于露天场所及仓库的装卸或抓取物料,本产品有地面操纵和室内操纵两种型式。

  MHModelElectricHoistGirderGantryCraneisusedtogetherwithCDMDModelelectrichoists.Itisatracktravellingsmallandmedium-sizedcrane.ItsproperLiftingweightis3to20tons.Properspanis12to30meters,itsproperworkingtemperatureis-20℃to40℃.

  Thisproductisaregularcranewidelyusedatopengroundandwarehousestolqad,unloadorgrabmaterials.Ithastwocontrollingmethods,namelyground,controllingandroomcontrolling.


产品优势

PRODUCT ADVANTAGES

  • 专业研发

    专业的研发技术人员

  • 种类齐全

    研究产品种类多种多样

  • 性能稳定

    产品可长时间稳定工作

  • 完善售后

    拥有完善的售后服务体系

在线留言

MESSAGE